Tamborine Mountain Library
Project Lead has approved Project Page to be archived as consultation has concluded
The opening of Tamborine Mountain's refurbished library marked the beginning of a new chapter as a dynamic community hub with a range of facilities catering for all ages and interests.
The project, that has seen an almost trebling in size of the former library space, was proudly supported through the jointly funded Commonwealth-State Disaster Recovery Funding Arrangements in association with Scenic Rim Regional Council.
Community Consultation completed in 2021 helped shape the planning for the new library following Council's purchase of the former shopping centre site, with key features of the new space identified through Council's community engagement platform, Let's Talk Scenic Rim.
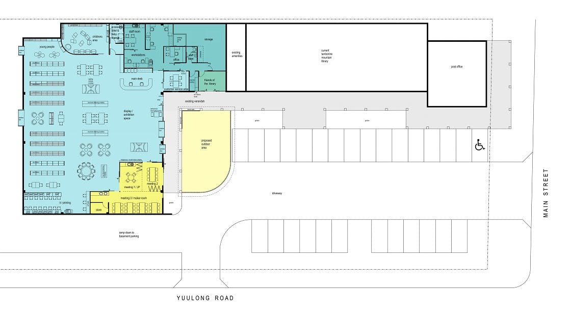
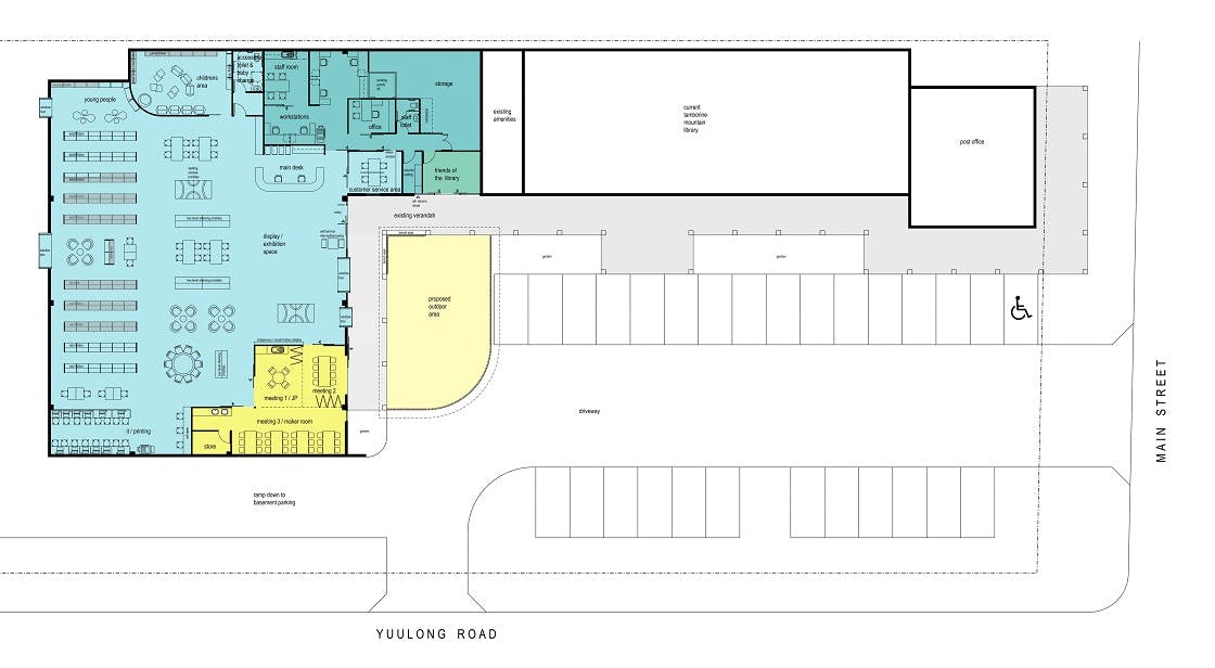
The new library includes:
- an expanded collection of curated library resources,
- a delightful children's area that promotes learning through play and adventure,
- public meeting rooms with afterhours access and technology to support a wide range of uses,
- a Customer Contact/service point to provide access to a broad range of assistance and services,
- a space for allied library volunteer support through Tamborine Mountain Friends of the Library, and
- a bespoke Maker Space to promote STEAM (Science, Technology, Engineering, Arts and Maths) programs and learning outcomes.
The new library features a high level of amenity with a thoughtful range of quality furnishings to provide comfort and encourage users to linger in the space and enjoy the ambience. The design approach has considered the diversity and inclusion requirements of the community, which enhances the customer experience for all users. In addition, Council funded the construction of an outdoor area, providing a gathering space for the community that will accommodate school holiday and group activities.
Thank you for your contributions. Your feedback has informed the design and layout of the new space in line with the shared vision in the Community Plan for accessible and serviced region.
We encourage individuals, local community groups and organisations to share this information with their existing networks. If you would like to receive updates, outcomes and notifications for Council projects, please 'subscribe' to the project page on Let's Talk Scenic Rim.
Project Lead has approved Project Page to be archived as consultation has concluded






